U gebruikt een verouderde internetbrowser.
We raden u aan om de meest recente internetbrowser te installeren voor de beste weergave van deze website.
Een internetbrowser die up to date is, staat ook garant voor veilig surfen.

Hofkouterstraat 71 / + LOT 2, 9890 Dikkelvenne
Vraagprijs: € 535.207

Omschrijving

Moderne nieuwbouwwoning in 't groen.

Nieuw te bouwen, moderne open bebouwing in het hart van Dikkelvenne.
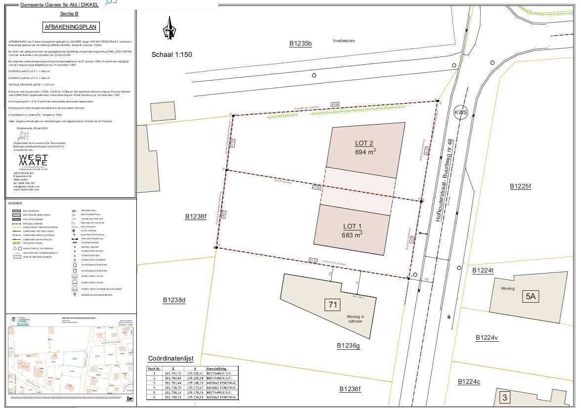
Lot 2 van de verkaveling met een oppervlakte van 693 m².

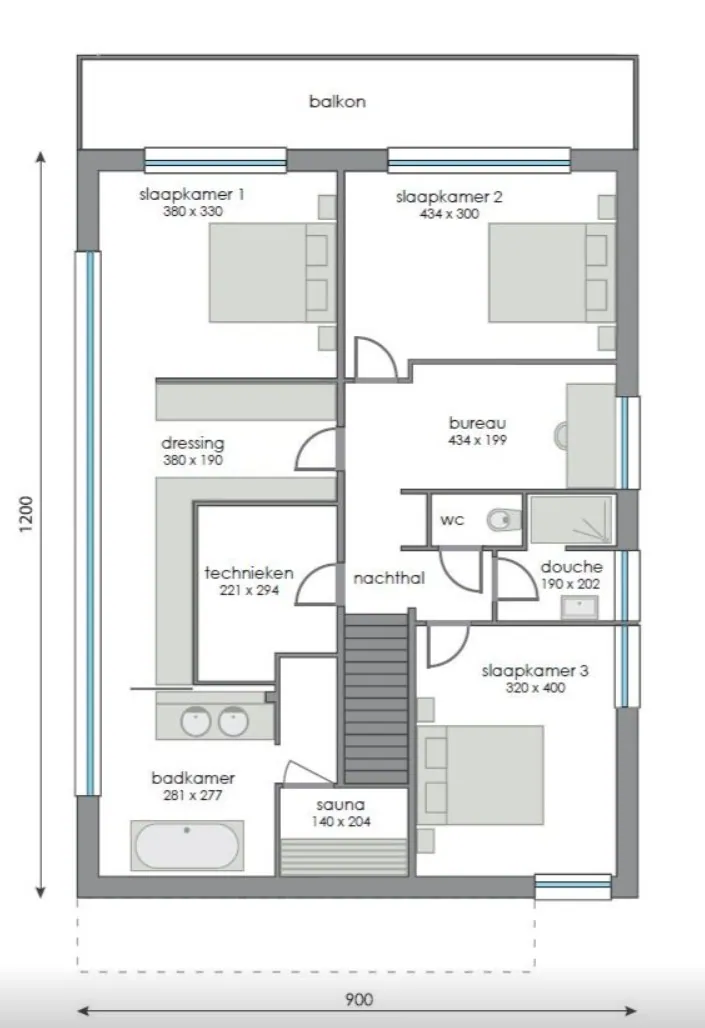
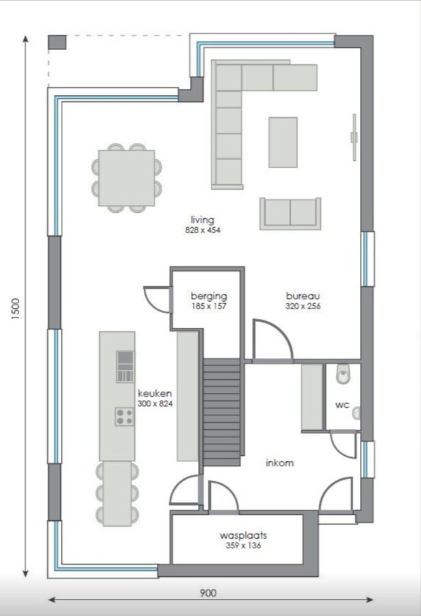
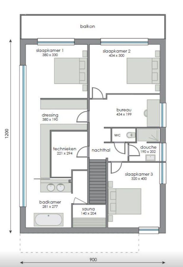
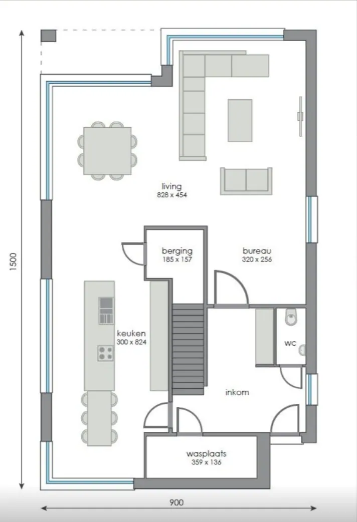
Visualisatie van de voorgevel en grondplannen zijn beschikbaar en geven een duidelijk beeld van het ontwerp van de woning.

De vermelde prijs omvat zowel de bouwgrond, als de nieuwbouwwoning tot wind- en waterdicht, exclusief kosten en BTW. De kosten van de architect en EPB verslaggever zijn niet in deze prijs opgenomen.
Indien gewenst, kan de woning eveneens verder volledig afgewerkt worden.

De grensmarkering op de luchtfoto (in rood weergegeven) is louter indicatief. Het bijgevoegde opmetingsplan bevat de exacte afmetingen.


Kenmerken

Algemeen

Adres:Hofkouterstraat 71-+/LOT 2
Dikkelvenne
Referentie:TK/3789
Vraagprijs:€ 535.207
Type:Woning
Beschikbaar vanaf:Bij akte
Perceeloppervlakte:693 m²
Perceelbreedte:21,5 m
Perceeldiepte:41,7 m
Type constructie:Traditioneel

Indeling

Slaapkamers:3
Badkamers:1
Douchekamer:Ja
WC:2
Bureau:Ja
Woonkamer:Ja
Keuken:Ja
Berging:Ja
Wasplaats:Ja
Tuin:Ja
Tuin oriëntatie:West
Tuin kwaliteit:Fraai aangelegd

Comfort

Treinhalte:Ja - op 3000 m tot 4000 m
Bushalte:Ja - op minder dan 500 m
Winkel:Ja - op 500 m tot 1000 m
School:Ja - op minder dan 500 m
Kinderopvang:Ja - op minder dan 500 m
Bank:Ja - op minder dan 500 m
Ontspanning:Ja - op minder dan 500 m
Restaurant:Ja - op minder dan 500 m

Kadastrale gegevens

Kadastrale benaming:44016
Kadastrale Nummers:1236KP0000
Kadastrale Oppervlakte:694 m²

Informatieplicht

Stedenbouwkundige vergunning:Neen
Voorkooprecht:Neen
Verkavelingsvergunning van toepassing:Ja
Stedenbouwkundige bestemming:Woonuitbreidingsgebied
Dagvaarding en herstelvordering:Geen rechterlijke herstelmaatregel of bestuurlijke maatregel opgelegd
Overstromingsgevoelig:Niet meegedeeld
Overstromingsgebied:Niet meegedeeld
Erfgoed:Niet meegedeeld
Bewoonbare vloeroppervlakte
De vermelde bewoonbare oppervlaktes betreffen bruikbare vloeroppervlaktes en vormen de som van de bruto-vloeroppervlakten van alle vloerniveaus (= vloerverdiepingen) binnen het beschermd volume.
Deze oppervlaktes worden onder meer berekend op basis van buitenafmetingen; de grondoppervlakten van binnen- en buitenwanden worden meegerekend en muren tussen twee wooneenheden worden met halve dikte in rekening gebracht.
Wat de bronvermelding betreft, baseren wij ons op de oppervlakte zoals vermeld in het EPC-attest.


Grondoppervlakte

De vermelde grondoppervlaktes zijn steeds deze zoals opgenomen in het kadaster en worden louter ter informatieve titel meegedeeld. Deze gegevens worden verstrekt zonder waarborg van juistheid van de kadastrale aanduidingen.
 

Ligging

Neem vrijblijvend contact op

Wenst u meer informatie over dit pand of wenst u het te bezoeken? Contacteer ons vrijblijvend voor meer informatie. 
Wanneer wij uw aanvraag ontvangen hebben, zullen wij verder contact met u opnemen. 


U moet akkoord gaan met het privacybeleid van deze website
* Verplicht in te vullen
Niet gevonden wat u zocht? Schrijf u dan vrijblijvend in op onze nieuwsbrief en blijf op de hoogte van ons recentste aanbod.
Schrijf u in
Terug naar boven
Sluit menu Van Der Schueren Vastgoed