U gebruikt een verouderde internetbrowser.
We raden u aan om de meest recente internetbrowser te installeren voor de beste weergave van deze website.
Een internetbrowser die up to date is, staat ook garant voor veilig surfen.

Onderstraat 17, 9890 Gavere
Vraagprijs: € 359.000

Omschrijving

Moderne nieuwbouwwoning in hartje Gavere !

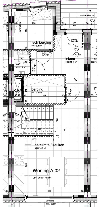
Deze moderne woning (A0.2), gelegen langs de Onderstraat in Gavere, biedt een ideale combinatie van comfort, praktische indeling en een uitstekende locatie nabij de Gaverse markt.

Indeling is als volgt:
*Gelijkvloers: Ruime inkomhal met gastentoilet, een technische berging, een volledig uitgeruste keuken met aanpalende berging, en toegang tot het terras en de tuin.
*1e verdieping: Gezellige leefruimte, een badkamer en een ruime slaapkamer.
*2e verdieping: Nachthal, tweede badkamer en twee extra slaapkamers.

Ondergrondse staanplaatsen zijn ook beschikbaar en kunnen afzonderlijk worden aangekocht (€ 28.500 of € 31.000, afhankelijk van de grootte, exclusief kosten).

Prijs exclusief kosten.


Kenmerken

Algemeen

Adres:Onderstraat 17
Gavere
Referentie:TK/1597
Vraagprijs:€ 359.000
Type:Woning
Beschikbaar vanaf:Bij akte
Bewoonbare opp.:174 m²
Type constructie:Traditioneel
Bouwjaar:2024

Indeling

Slaapkamers:3
Badkamers:2
WC:2
Woonkamer:22 m²
Keuken:15 m²
Tuin:24 m²

Informatieplicht

Overstromingsgevoelig:Niet meegedeeld
Overstromingsgebied:Niet meegedeeld
Erfgoed:Niet meegedeeld
Bewoonbare vloeroppervlakte
De vermelde bewoonbare oppervlaktes betreffen bruikbare vloeroppervlaktes en vormen de som van de bruto-vloeroppervlakten van alle vloerniveaus (= vloerverdiepingen) binnen het beschermd volume.
Deze oppervlaktes worden onder meer berekend op basis van buitenafmetingen; de grondoppervlakten van binnen- en buitenwanden worden meegerekend en muren tussen twee wooneenheden worden met halve dikte in rekening gebracht.
Wat de bronvermelding betreft, baseren wij ons op de oppervlakte zoals vermeld in het EPC-attest.


Grondoppervlakte

De vermelde grondoppervlaktes zijn steeds deze zoals opgenomen in het kadaster en worden louter ter informatieve titel meegedeeld. Deze gegevens worden verstrekt zonder waarborg van juistheid van de kadastrale aanduidingen.
 

Ligging

Neem vrijblijvend contact op

Wenst u meer informatie over dit pand of wenst u het te bezoeken? Contacteer ons vrijblijvend voor meer informatie. 
Wanneer wij uw aanvraag ontvangen hebben, zullen wij verder contact met u opnemen. 


U moet akkoord gaan met het privacybeleid van deze website
* Verplicht in te vullen
Niet gevonden wat u zocht? Schrijf u dan vrijblijvend in op onze nieuwsbrief en blijf op de hoogte van ons recentste aanbod.
Schrijf u in
Terug naar boven
Sluit menu Van Der Schueren Vastgoed