U gebruikt een verouderde internetbrowser.
We raden u aan om de meest recente internetbrowser te installeren voor de beste weergave van deze website.
Een internetbrowser die up to date is, staat ook garant voor veilig surfen.

Broekstraat
Broekstraat 243, 9700 Eine
Prijs vanaf € 335 000

Omschrijving

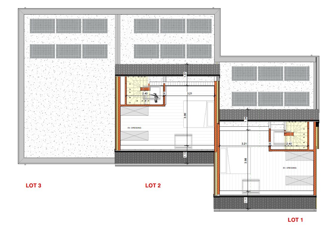
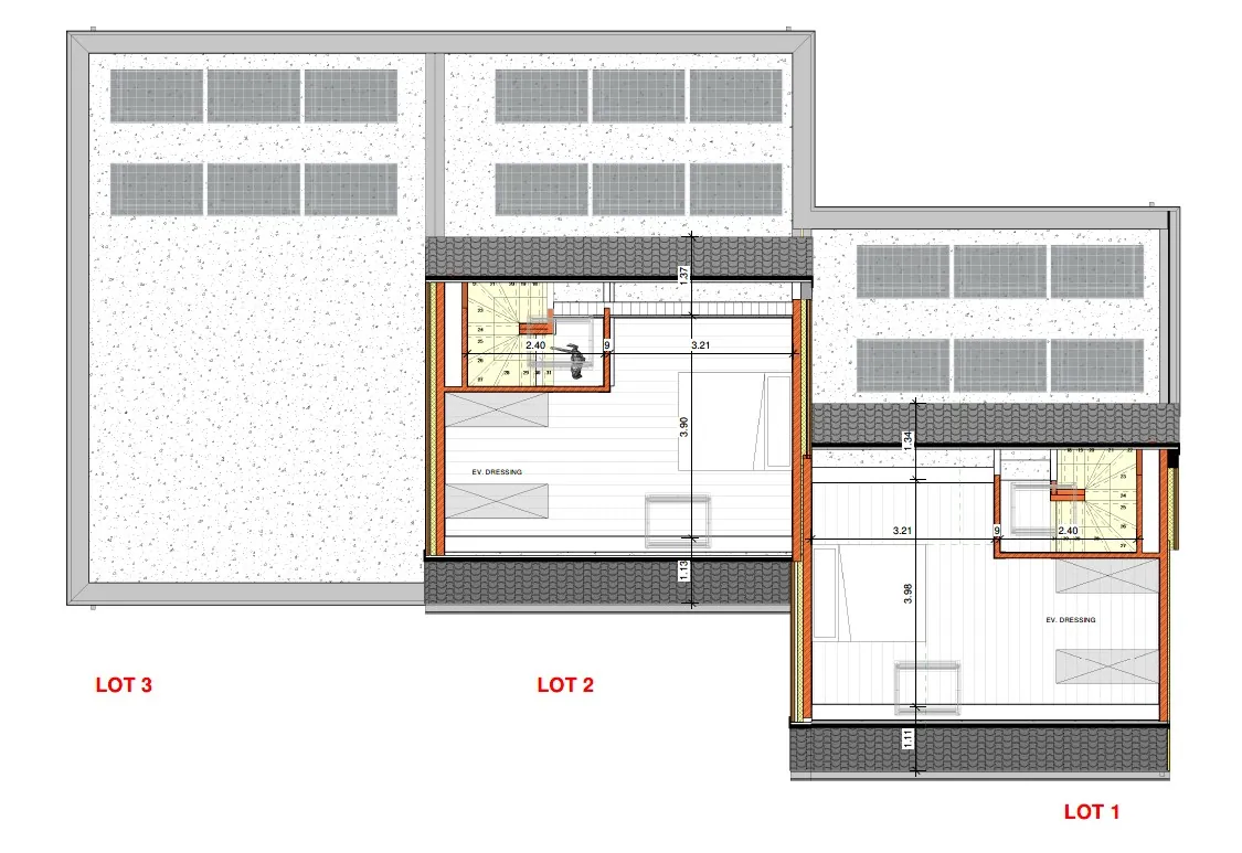
3 nieuwbouwwoningen te Eine

Ontdek dit kleinschalige nieuwbouwproject in Eine, bestaande uit drie moderne woningen. Gelegen op een rustige, doch centrale locatie, nabij allerhande voorzieningen, openbaar vervoer en de N60, combineert dit project comfortabel wonen met vlotte bereikbaarheid.

De woningen worden gerealiseerd door ruwbouwaannemer Chris Teirlinck en onderscheiden zich door hun kwaliteitsvolle uitvoering en praktische indeling.

Lot 1 & 2 (gesloten bebouwing) met grondoppervlakte 347 m² & 336 m² - vanaf € 335.000 excl. kosten*.
Lot 3 (halfopen bebouwing) met grondoppervlakte 466 m² - vanaf € 355.000 excl. kosten*.

Elke woning biedt een ruime leefruimte, lichtrijke half-open keuken met zicht op de tuin en een doordacht slaapgedeelte met drie slaapkamers. Bij lot 1 & 2 is eveneens een afgewerkte zolderruimte voorzien (pleisterwerk & chape).

U bepaalt zelf of u de woning volledig laat afwerken door de aannemer, of liever zelf de laatste hand aan de afwerking legt.

Een ideale kans voor wie op zoek is naar een energiezuinige, hedendaagse woning in een aangename woonomgeving met alle comfort binnen handbereik.

* Kosten voor nutsaansluitingen (€ 3744,47 excl. btw), aandeel verkavelingsakte (€ 800,00 excl. btw), prekadastratie (€ 250,00 excl. btw) en notaris te dragen door de koper.


Model Opp. Slpk. Prijs  
LOT 1 - NIET AFGEWERKT 171 m² 3 € 335 000 Bekijk detail
LOT 2 - NIET AFGEWERKT 163 m² 3 € 335 000 Bekijk detail
LOT 3 - NIET AFGEWERKT 132 m² 3 € 355 000 Bekijk detail
LOT 1 - AFGEWERKT 171 m² 3 € 368 000 Bekijk detail
LOT 2 - AFGEWERKT 163 m² 3 € 367 500 Bekijk detail
LOT 3 - AFGEWERKT 132 m² 3 € 387 000 Bekijk detail

Ligging

Neem vrijblijvend contact op

Wenst u meer informatie over dit pand of wenst u het te bezoeken? Contacteer ons vrijblijvend voor meer informatie. 
Wanneer wij uw aanvraag ontvangen hebben, zullen wij verder contact met u opnemen. 


U moet akkoord gaan met het privacybeleid van deze website
* Verplicht in te vullen
Niet gevonden wat u zocht? Schrijf u dan vrijblijvend in op onze nieuwsbrief en blijf op de hoogte van ons recentste aanbod.
Schrijf u in
Terug naar boven
Sluit menu Van Der Schueren Vastgoed