U gebruikt een verouderde internetbrowser.
We raden u aan om de meest recente internetbrowser te installeren voor de beste weergave van deze website.
Een internetbrowser die up to date is, staat ook garant voor veilig surfen.

Broekstraat 243, 9700 Eine
Vraagprijs: € 368.000

Omschrijving

Nieuwbouwwoning te Eine (6% BTW mogelijk!)

Deze moderne nieuwbouwwoning combineert comfort, kwaliteit en een doordachte indeling.
Op het gelijkvloers verwelkomt een ruime inkomhal met gastentoilet je in de woning. De lichte leefruimte met halfopen keuken vormt het hart van het huis, met uitzicht op de tuin. Aansluitend aan de keuken bevindt zich een praktische berging/wasplaats.

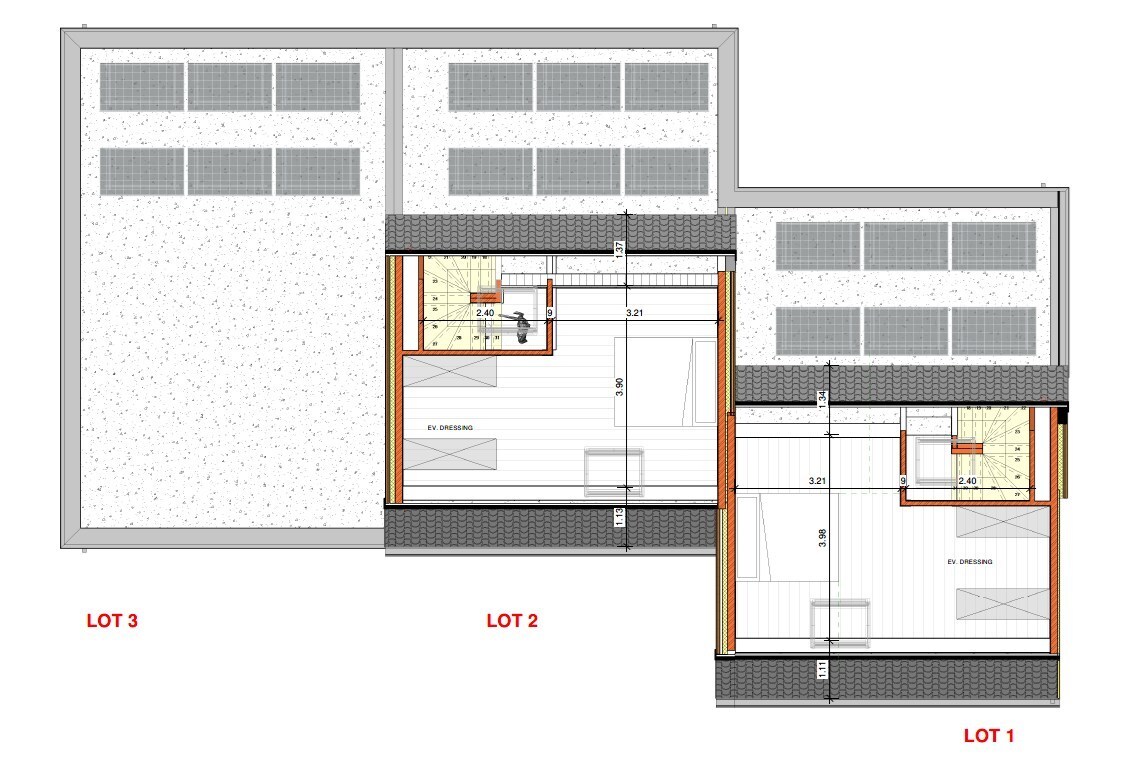
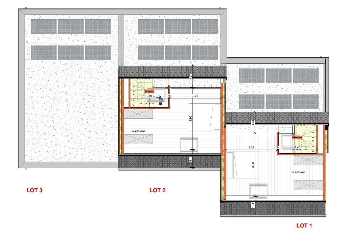
Op de eerste verdieping vind je 3 aangename slaapkamers, een afzonderlijk toilet en een stijlvolle badkamer. Via een vaste trap bereik je de afgewerkte zolderverdieping, ideaal als extra slaapkamer, bureau of hobbyruimte.

De koper kan, indien gewenst, nog een garage en tuinberging plaatsen in de achtertuin.
Achteraan het perceel is er eveneens ontsluiting via een gemeenteweg.

De woning is afgewerkt met kwalitatieve materialen en voorzien van vloerverwarming op aardgas, sanitaire installatie (incl. sanitaire toestellen), ventilatiesysteem type D, gekeurde elektrische installatie met zonnepanelen, regenwaterpomp (geplaatst in de regenwaterput), gepleisterd en volledig gechapt. Tevens is een binnentrap in beuk voorzien.

De verdere afwerking, waaronder sanitaire toestellen met meubilair, vloeren en faïence, binnendeuren en keuken, wordt gerealiseerd naar eigen smaak van de koper. De laminaatvloeren in de slaapkamers worden door de koper zelf voorzien.
Indien gewenst kan de woning ook 'niet afgewerkt' worden aangekocht (>> zie publicatie 'LOT 1 - NIET AFGEWERKT').

Een woning die klaarstaat om jouw thuis te worden — comfortabel, energiezuinig (E-peil 14 *) en met oog voor detail.

Grondaandeel: € 112.500,00 (excl. notaris, aandeel verkavelingsakte, prekadastratie, .. **)
Constructie: €255.500,00 (excl. 21% BTW - 6% BTW mogelijk mits voorwaarden)

*Kopers kunnen genieten van een vermindering van onroerende voorheffing van 50% gedurende de eerste 5 jaar van 50%.

** Kosten voor nutsaansluitingen (€ 3744,47 excl. btw), aandeel verkavelingsakte (€ 800,00 excl. btw), prekadastratie (€ 250,00 excl. btw) en notaris te dragen door de koper.


Kenmerken

Algemeen

Adres:Broekstraat 243
Eine
Referentie:TK/3460
Vraagprijs:€ 368.000
Type:Woning
Beschikbaar vanaf:Bij oplevering
Perceeloppervlakte:347 m²
Bewoonbare opp.:171 m²
Type constructie:Traditioneel
Bouwjaar:2025
Gevelbreedte:6,64 m

Indeling

Slaapkamers:3
Badkamers:1
WC:2
Woonkamer:Ja
Keuken:Ja, Half-open keuken
Zolder:Ja
Terras:Ja
Wasplaats:Ja
Tuin:Ja
Tuin oriëntatie:Zuid-Oost
Tuin kwaliteit:Aan te leggen

Comfort

Treinstation:Ja - op 1500 m tot 2000 m
Busknooppunt:Ja - op 1500 m tot 2000 m
Bushalte:Ja - op minder dan 500 m
Winkel:Ja - op 1500 m tot 2000 m
School:Ja - op 1000 m tot 1500 m
Kinderopvang:Ja - op 500 m tot 1000 m
Bank:Ja - op 500 m tot 1000 m
Ontspanning:Ja - op 500 m tot 1000 m
Restaurant:Ja - op 1500 m tot 2000 m
Raamwerk:PVC
Dak:Zadeldak - en plat dak
Gevel:Baksteen
Fundering:kleidekpannen
Beglazing:Hoogrendementsglas
Elektriciteit:Zal gekeurd worden.
Verwarming:Condensatieketel, Aardgas
Verwarmd water:Gasboiler
Isolatie:Dakisolatie, Muurisolatie, Vloerisolatie, Volledig geïsoleerd
Mech. ventilatie :Ja - Systeem type D
Zonnepanelen:Ja - 6 stuks (+- 2670 Wp)

Kadastrale gegevens

Kadastrale benaming:45502 OUDENAARDE/2 AFD/EINE/SECTIE B
Kadastrale Nummers:0822/00R003 ; 0822/00S003

Informatieplicht

Energielabel:A
EPC E-peil:14,00
Stedenbouwkundige vergunning:Ja
Voorkooprecht:Neen
Verkavelingsvergunning van toepassing:Ja
Stedenbouwkundige bestemming:Woongebied
Dagvaarding en herstelvordering:Geen rechterlijke herstelmaatregel of bestuurlijke maatregel opgelegd
Overstromingsgevoelig:Geen overstromingsgevoelig gebied
Overstromingsgebied:Geen afgebakende zones
Erfgoed:Geen beschermd erfgoed
De vermelde oppervlaktes betreffen bruikbare vloeroppervlaktes, en zijn de som van de bruto-vloeroppervlakten van alle vloerniveaus (= vloerverdiepingen) binnen het beschermd volume.

Deze worden, onder andere, berekend met buitenafmetingen, de grondoppervlakten van binnen- en buitenwanden worden meegerekend en de muren tussen twee wooneenheden worden met halve dikte meegerekend. Wat onze bron-vermelding betreft : we baseren ons op oppervlakte(s) zoals ze vermeld wordt / worden in het EPC-attest.
 

Ligging

Neem vrijblijvend contact op

Wenst u meer informatie over dit pand of wenst u het te bezoeken? Contacteer ons vrijblijvend voor meer informatie. 
Wanneer wij uw aanvraag ontvangen hebben, zullen wij verder contact met u opnemen. 


U moet akkoord gaan met het privacybeleid van deze website
* Verplicht in te vullen
Niet gevonden wat u zocht? Schrijf u dan vrijblijvend in op onze nieuwsbrief en blijf op de hoogte van ons recentste aanbod.
Schrijf u in
Terug naar boven
Sluit menu Van Der Schueren Vastgoed